Rover space capsule house consists the seismic steel frame as the foundation,aviation aluminum-alloy ,silicone weather-prooofing sealant and vacuum glass are applied to exterior structure. The internal decoration consists premium wood grain lock floor and bamboo fiber board ceiling. Whole house integrated intelligent control system provide a smart and convinient life style to user.
Why Us!
| Space Capsule House Type | R312 | ||||
| Dimensions | L11.5*W3.3*H3.15( M) | ||||
| Exterior equipment | 1、Seismic system steel structure. 2、Aviation aluminum shell system. 3、Heat insulation and sound insulation Double-layer tempered hollow glass. 4、Fire- resistance Foamed polyurethane layer panel(Special patent). | ||||
| Interior equipment | 1、Fully-finished house decoration include environmental floor,ceilling and wall,top brand wires,water tube, lamps, sanitary ware,air conditioner,water heater,toilet,shower facilities,smart curtain etc. 2、Smart Control System:Whole-house voice smart control,smart door lock,smart curtain. | ||||
| Other configuration | Concealed and anti-noise equipment room,water supply and drainage cold protection system,steel structure supports,stationary rings accessories. | ||||
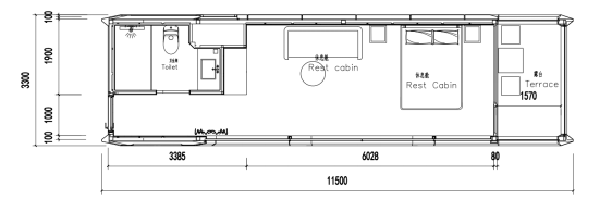
Space Capsule House Type:R312
Dimensions: L11.5*W3.3*H3.15(M)
Number of the guest:2-3persons


Note: The product is constantly upgraded, the picture is for reference only, the final product is subject to delivery
| Configuration class | Standard configuration | ||||
| Major Structure | Seismic steel structural systerm(Safety Certification:ISO9001),aviation aluminum-alloy +silicone weatherproofing sealant,PC board light box(Customized),100mm foamed polyurethane layer+flame resistance panel(Special patent) | ||||
| Door and windoe glass part | LOW-E Insulated tempered glass,sound+heat insolation lock smart lock door,floorboard | ||||
| Decoration section | Bamboo fiber board(Environmental Certification),multi-layer solid wood floor(Environmental Certification) | ||||
| Bathroom section | Toilet,shower,wash basin,bathroom mirror,shower room partition etc | ||||
| Electrical section | Bath heater,water heater,air conditioner,whole-house voice intelligent control,Intelligent projector | ||||
| Other Configuration | Integration ER,stationary ring,transport fastener,basic connector,carbon steel supporting stand,fabric curtains | ||||
| Notes | Optional(Customized):Electric floor heating,double bed+mattress;Features:Good fire-proof,water-proof and seismic resistance,easy construction,interior space available,customizable interior finish and furnishing | ||||
